房子风水好的预兆,买房时,如何辨别好房子?
发布时间:2022-02-02 阅读:154因为喜欢,所以专业,我是室内设计师李秀玲房子风水好的预兆!欢迎大家跟我一起讨论家居设计、装修等问题。
不管是新房二手毛坯精装,不管是公寓平层刚需改善,有些买房者买房时挑的都是好房型,难怪说他们聪明,买房前把这些都提前考虑清楚了,那肯定一买一套好房的呀!
① 户型的采光、通风与布局分析
② 同一楼层的东、中、西户优缺点对比
③ 同一户型的楼层选择分析
买房子,除了要考虑周边的教育、医疗、交通、商业等配套之外,还要着重研究房子本身户型的舒适性。咋研究?从采光、通风、布局这三点着手:
01采光、通风、布局
1、采光
房子的采光,主要由朝向、楼间距、开间进深比等原因决定的。
① 朝向
太阳东升西落,坐北朝南的房子采光最好。下图是一栋两梯六户的房子:
六套房子里,朝南的两个户型采光最好,其中东侧南朝向的房子可以接受日出的洗礼,西侧南朝向的房子可以见证日落。
至于东朝向和西朝向的房子,分别只有上午和下午有阳光,且西朝向的房子西晒严重;而西北和东北朝向,最好的情况也只是在日出和日落两个时间段有点阳光!
② 楼间距
如果前面有遮挡,再好的朝向也会打折扣。所以,楼间距很重要!
国家规定的最小楼间距参考下图:
即:多层(4-6层及以下)与多层建筑间距为6米;多层与高层(12层及以上)为9米;高层与高层之间为13米。
不过,即使是楼间距达标的房子,底层的采光时间会很短,如果想要更好的采光,建议购买房屋1/3高度以上的房子。
③ 开间进深比
开间指的是房子采光面的宽度,一般指东西向的距离;
进深与开间垂直,一般指的是房子南北向的距离。
开间和进深的比例约1:1.5左右较合适,这样的房子比较方正,如果进深过大开间过小,会影响采光,房间内会比较暗;进深偏小,开间过大,则不利于房间保温。
▲ 开间进深比约为1:1,采光较好
▲ 开间进深比约为1:2.5,采光较差
如果你家的房子采光不是太好,也可以通过后期装修来改善。
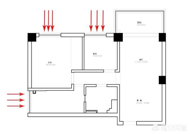
2、通风
我们所说的“南北通透”,就是指房子的通风比较好。南北方向都有窗户,才能形成空气对流。
同一楼层四套房子一字排开,中间无遮挡,既使是中间户,也因开放的连廊保持南北空气对流。除了上面这种南北对侧通风的房子外,还有相邻通风和单侧通风的房子:
△相邻通风
南边有窗,北边没有,但是东西侧有窗,这样的通风条件,在中间户中居多。房子四个面只有一个朝南面有窗户,单向通风的通透度是最差的,小伙伴们要慎重选择!
△单向通风
3、布局
房子布局主要看两方面,一是各功能区的空间大小是否合理,另一个是各功能区的位置分布是否合理。
① 空间大小
好的户型,每个空间的面积大小都比较合适,对于家庭住房来说:
客厅面宽在3.6m+,面积在14㎡+比较合适。主卧面积在14㎡+,可放下2m宽的双人大床。次卧面积在9㎡+,可放下1.5m宽的单人床。卫生间的大小应在4㎡+,比较合适。厨房在5㎡+,比较合适。不过,如果你看好的房子,其他条件都很完美,只有个别小空间有瑕疵,也不用太担心,可以通过设计改造来优化。
举个例子:
位于【合肥-信达天御】的这套房子,有好几个非常鸡肋的碎小空间,我们将其拆掉重组,充分利用。
② 位置分布
好的户型应该动静分区,客餐厨及客卫分布在动区,书房卧室等休息空间独立在静区,动静分区互不打扰。如下:
此外,功能区的位置分布还关系到家居动线的规划。
如上图,客卫紧邻客餐厅;厨房与餐厅紧邻,且与休息区分开,油烟味不会飘入卧室;主卧增加衣帽间,起居洗漱一气呵成。实在优秀!大家买房就参考可以这样的布局!
02东边户、中间户、西边户
房产市场上流传这样一句话:“能买东边户,不买西边户;能买西边户,不买中间户……”
中间户表示:“嘤嘤嘤…我做错了什么要这样遭嫌弃…”
为什么大家青睐东西边户而嫌弃中间户呢?且听飞墨君给大家深入剖析。
1、东边户
太阳东升西落,东边户每天早晨都可以最早接受阳光的洗礼,如果前方无遮挡,又是高层,是可以作为观景房看到日出的哦~
But,在多雨地区或梅雨季节,刮东南风的时候,东边户会有渗水或发霉的情况,不过具体还是要看房屋质量,装修时候做好防水层就不用担心啦!
2、西边户
与东边户的采光正好相反,西边户下午接受日照的时间比较长,可以看夕阳西下。
但是,在夏季会有西晒的情况,会比东边户和中间户闷热。前两天刚说过西晒房的装修攻略,这里就不多说了。
此外,东西边户在面积上,普遍会比中间户大一些,因此,功能更加完善。且三面有窗,通风性也更好。
再来看看中间户:
一般来说,中间户多是小户型。面积小,如果家庭成员较多,不够住。
相较于边户,中间户普遍只有南面一侧有采光,且通透性也做不到全明户型那么好,室内环境比边户差很多。
由于中间户两边都有邻居,因此私密性较差。如果靠近电梯……人来人往的难免受噪音影响。
“难道中间户就不配有优点吗???”
当然不是,中间户往往:
① 保温性能好:中间户夹在中间,保温效果要优于边户,如果是分交通核户型,中间户的采光通风等问题也可以迎刃而解。
② 价格便宜:中间户虽然面积小,但是总价低,非常适合年轻人刚需买房。
③ 不宜渗水:中间户能弥补东边户受雨水冲刷的弊端,墙体基本上不会渗水。
所以,中间户也没有那么鸡肋!
历经九九八十一道对比和纠结后好不容易选好了的户型,以为可以付款签约了,万万没想到,不同楼层价格还不一样……
03底楼层、中楼层、高楼层
“飞墨君,从1楼到32楼,每层价格都不一样,我要怎么选?”
确实是个复杂的问题,选楼层,主要看采光、视野、噪音这三点的影响。
1、采光
低楼层的采光不仅会被前面的建筑物遮挡,还会被小区景观绿化遮挡,一遮可能就是遮到了三楼四楼。所以,越高的楼层,采光是越好的。
2、视野
当楼房前面有居民楼时,远眺城市景观视野是这样的:
低楼层被前面的楼房遮挡,啥也看不到,而高楼层视野无遮挡,可观赏城市景观。所以,很多人也是出于观景考虑,选择高楼层。
3、噪音
不同楼层的噪音大小,与声音的传播范围有关,底层住宅被小区绿化植被遮挡,受噪音影响小,而中间楼层无遮挡,直接被声波影响,噪音感受比较强烈。
除此之外,一楼比较潮湿,顶楼有漏水风险,这两个缺点也直接影响到房价。
总的来说,对于高层住宅而言,总层数1/3以上2/3以下为较好楼层。当然,这些最优楼层的价格也是最高的,大家根据自己的实际情况选择哦~
