农村宅基地吉凶平面图,宅基地要建房,该如何设计?
发布时间:2022-03-19 阅读:353您好农村宅基地吉凶平面图,住宅公园为您解答,宅基地17.5m×19m可以设计一个很舒适的户型了,在问题中提到要建二层,并且从您提供的图片来看,您是想做一个小院子,不过还是建议您做私人定制,可以根据自己的要求来规划自己的房子,同时也欢迎您关注我头条号。这里为您分享两套与您家宅基地尺寸相符,且都带有小院的中式户型供您建房参考。
第一套
占地尺寸:17.4m×20.4m
占地面积:355㎡
建筑层数:1层
一套一层中式小院,农村宅基地尺寸够大,一般都会考虑做个小院,能种种花草树木,还可以圈块地养养鸡鸭。
一层设了,6卧室、1娱乐室、1客厅、1厨房及餐厅、1储藏室、3卫生间
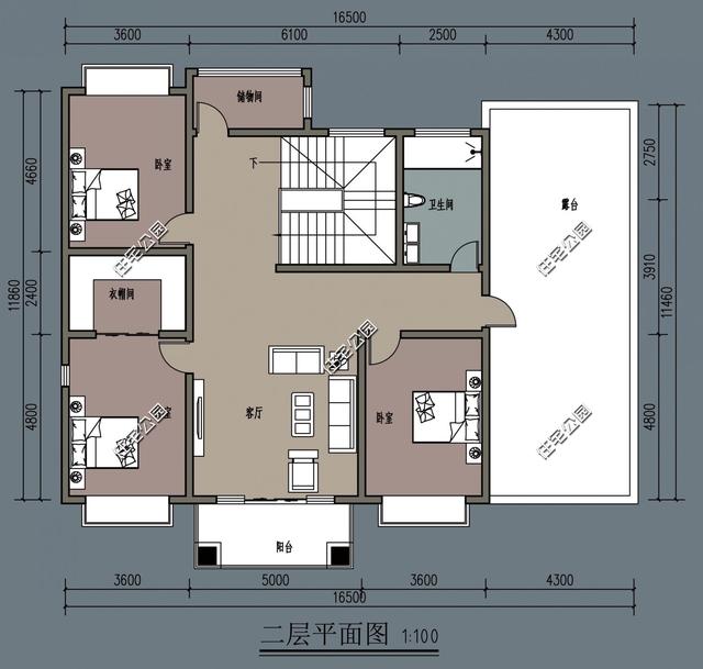
第二套
占地尺寸:16.74m×19.74m
占地面积:330㎡
建筑层数:2层
一套中式风格两层自建房户型,农村家里人口多,逢年过节家里还要接待亲戚,就会出现房间不够住的情况,那么多卧室就成为了首选,当然还要有个小院就更完美了。
一层设了,2卧室、1棋牌室。1备用房、1KTV、1客厅、1餐厅、1厨房、1设备间、1卫生间
二层设了,6卧室、1书房、1儿童房、1起居室、2卫生间
大家说说,你们更喜欢哪套?
关注本号,1000套农村自建房图纸。
农村宅基地以外多占应该怎么处理?
所谓多占,实际指的是超过当地规定的面积。宅基地规定面积各地没有统一。至于说超标面积如何处理,本人也是看新闻报导所知。
我国82年颁布了农村建设用地管理条例,86年6月颁布了土地管理法。在这之前的个人宅基地,不管多大面积,即不管超标多少,都不箅违法。当时也颁发有土地证,这次确权,就按当时面积确权。
99年土地法重新修定。在86年以后至99年之前的宅基地,也按实际面积确权,但超标部分要注明。99年以后的宅基地,超标部分不予确权。至于如何处理,如今尚无具体政策。
试想啊,该收回的宅基地上面的房子还不许强拆。如果超占了,上面也有房子,不也是不能强拆吗?只有等政策了。如果还未建房子,好办,一丈量去掉完事。
宅基地在路南,建房应该怎么设计?
宅基地在路南,如果为了方便的话,建房可以选择坐南朝北,大门对着马路。那么坐南朝北的宅基地建房应该如何设计规划呢?今天小宅给大家分享3套精品图纸。
第1套:双入户门+挑空客厅+多套间,11×17米大气农村别墅,主体预算60万
占地尺寸:11.2m*17.8m
占地面积:176.7㎡
建筑面积:493㎡
总 高 度:12m
建筑情况:共设6室 4厅 8卫 1厨 1玄关 1茶室 1保姆间 1洗衣房 1棋牌室 2储物间 3衣帽间 1儿童娱乐室 2阳台 2露台
方正的立面造型与优雅的外观色彩,还有木色元素打造的窗框,都给人们留下儒雅端庄的好印象。而且辨识度也很高,妥妥的豪宅既视感。
室内布局也相当好,入户设立一个一个玄关,避免直接开门见山。玄关一侧是客厅一侧是餐厨,布局合理,分区明确,后面还有一个小茶室,聊天的时候更加私密。南向设立套间老人房,再来一个棋牌室,符合农村地区的实情。二层多卧室设计,足以满足居住需求。三层设立一个宽敞的家庭影院娱乐室,方便家人休闲娱乐。
第2套:阳光房+车库+地下室,16×15米现代美宅,主体预算40万
占地尺寸:16.4×15m
占地面积:157.59㎡
建筑面积:318.51㎡
建筑高度:9.685m
建筑情况:4卧 2厅 4卫 1厨 5阳台 1阳光房 1露台
农村自建房的优点,就是可以根据自身的喜好和需求来设计。如果预算充足,完全可以设立一个地下空间。房屋入户在北,一切布局以简约舒适为主。来到一层空间,两侧分别是独立车库与老人房空间。客厅餐厅一体化设计,室内宽敞通透。南侧设立舒适阳台,居住体验更佳。
第3套:双入户门+浪漫飘窗+大露台,11×16米复古美墅,主体预算45万
占地尺寸:16.5m*11.8m
占地面积:198.01㎡
建筑面积:344.35㎡
总 高 度:10.7m
建筑情况:共设5室 3厅 2卫 1厨 1备用房 1棋牌室 1玄关 1衣帽间 1书房 1储物间 1阳台 1露台
青灰色调带着一股烟雨感和复古韵味自成特色,宛如上世纪仿欧式老建筑,有种跨越时间的静谧与气质。在农村建一栋这样的别墅,同样显得档次十足。南北啥UN个uhumen,室内宽敞通透。将餐厨和棋牌室设立在北侧,卧室和客厅设立在南侧,合理的布局带来更为舒适的居住体验。
这3套图纸设计都非常好,你更喜欢哪一套呢?


