买房子最忌讳的户型,有哪些坑人的户型不能买?
发布时间:2022-01-26 阅读:143受限于高企的房价以及多年不涨的薪资,很多业主会为了省几万块钱,退而求其次选择一些户型很奇葩的房子买房子最忌讳的户型。
其实奇葩户型除了会影响居住舒适度,光是装修阶段就要多费很大功夫,多花好多钱,比如拆建墙壁、重新开门等,绝对是又费钱又不好住。
当然,很多业主买房可能不会自住,而是用来投资,但试想一下,谁家买房不想挑好户型,户型奇葩的房子就算是转手卖,也会被别人挑三拣四,狂压价啊?比如上图这种草泥马户型和下图这种手枪户型,但凡实力允许,谁也不想买吧?
除此之外,下面这些户型能不买也尽量别买,要么空间布局不合理,要么采光不好整天黑漆漆、要么夏天热死冬天冷死......
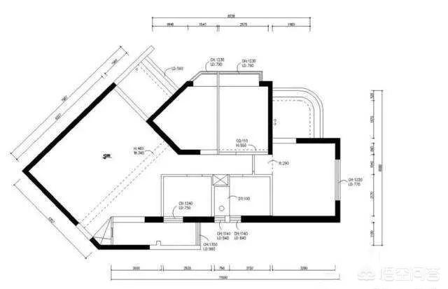
锯齿户型
01
锯齿户型存在很多采光和通风死角,而对我们的日常生活而言,采光非常重要。就算你装再多灯,灯光和自然光终究无法比,所以这类户型最好不要买,住久了整个人都会很压抑,影响健康。
棱角户型
02
高层塔楼最容易出现棱角户型,有效空间小,空间利用率低不说,关键从风水学上来说,这种户型就很不好。
走廊户型
03
走廊户型最大的特点就是长,非常长,而中间走廊太长根本无法利用,白白浪费。
不通透户型
04
不通透户型看着格局方正,实则空气无法流通,窗户过小或过少的户型都属于不通透户型。
什么是好户型?
1
这个户型较为方正,朝南的开间保障了室内采光。背面多为功能性房间,动静分离,是小户型中比较好的例子。
1、采光最重要
如果是现房,最好分几个不同时段去多次看房,判断上午和下午房子的采光如何。
2、综合考虑自己的情况
根据家庭日常生活的习惯和人口选择户型和楼层,如果给父母买房,又没有电梯,尽量选择低楼层,便于进出。
重视家人之间沟通和互动的,选择客厅较大的户型。
家里人比较多,那就选择卧室较多且面积均衡的房子。
我是小小家,一个致力于为您设计新家,美新家的小胖妞!留言费获取装修设计方案!




